En plein coeur des Batignolles
Ce charmant deux pièces traversant en étage élevé bénéficie d’une double exposition ainsi que d’une localisation idéale. Lumineux et sans perte de place, il s’articule autour des pieces d’eaux : d’un coté le séjour, ouvert sur la cuisine, de l’autre la chambre, séparée de la salle de bain par une verrière qui continue de faire circuler la lumière au travers de tout l’appartement. Un lieu agréable à vivre dans un quartier prisé de la capitale.
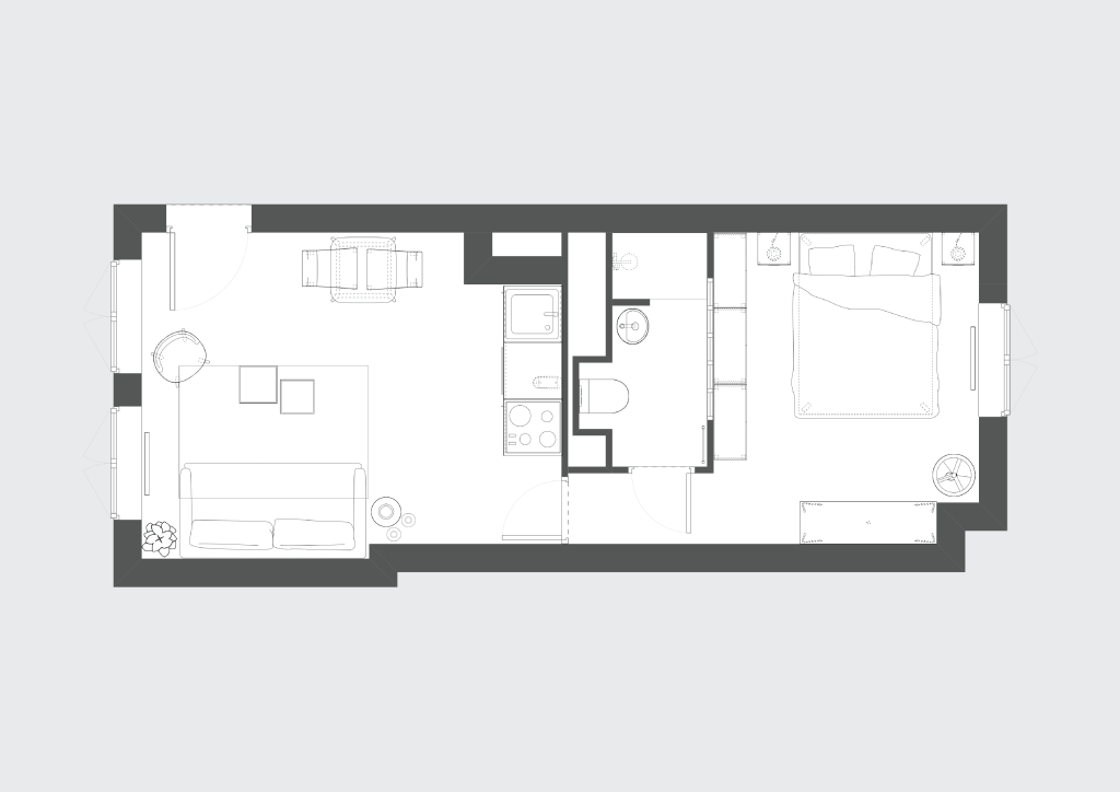
Un plan étonnant…
Lorsque l’on rentre dans cet appartement pour la première fois, il apparaît défraîchi, au plan un peu très particulier : le salon est minuscule et derrière se cache une cuisine fermée. La chambre en revanche est beaucoup plus vaste et elle abrite une salle de bain en deux parties : d’un côté de la fenêtre se trouvent les toilettes et de l’autre la douche… La disposition est étrange, cependant, la lumière, très présente, ainsi que le seul mur porteur des lieux nous aide à imaginer un univers plus ouvert, plus lumineux, de type loft.




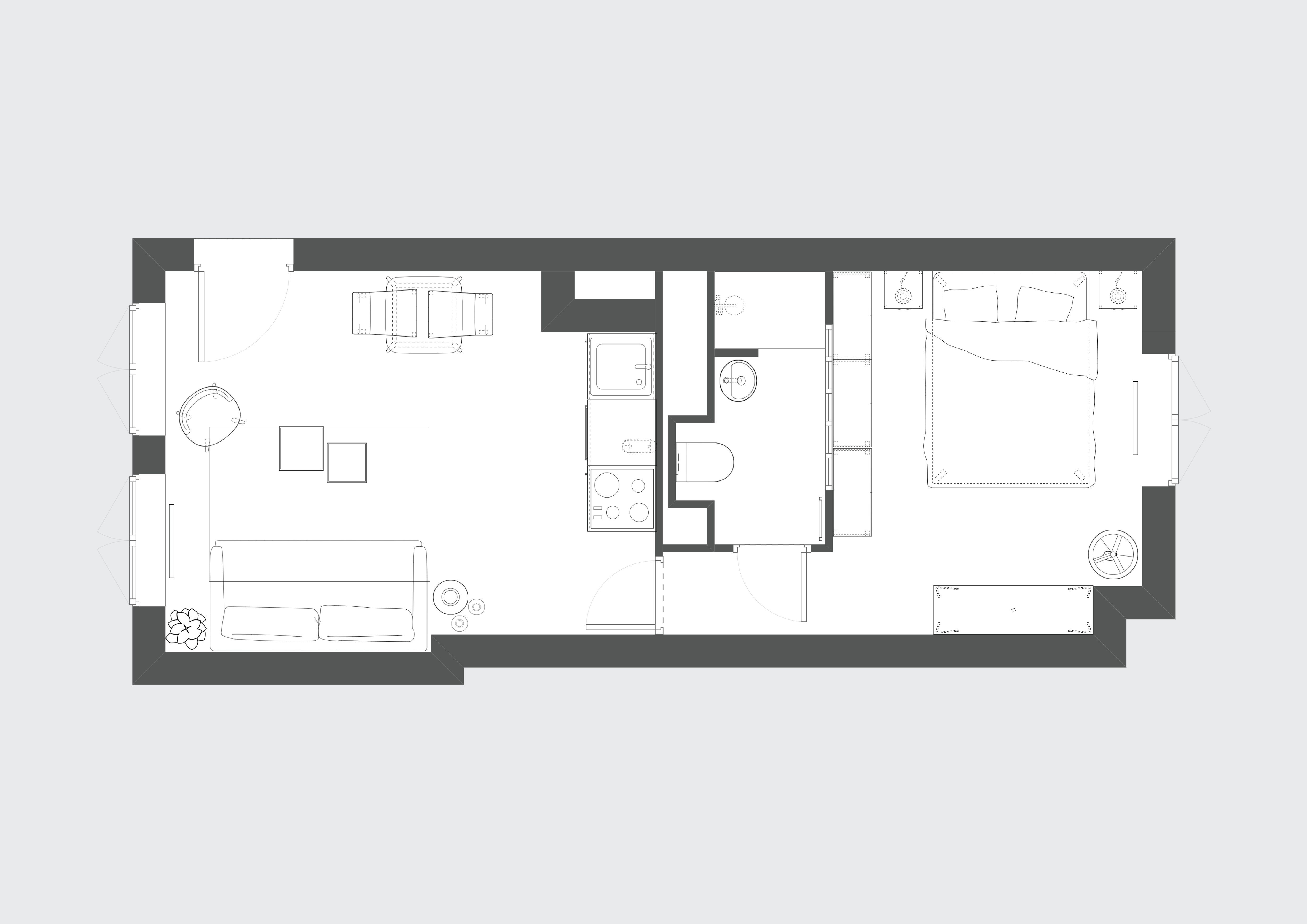
…Bien plus logique ainsi !
Afin de rééquilibrer les volumes de l’appartement, nous décidons de supprimer la cloison entre l’ancien salon et la cuisine afin de donner à la pièce à vivre un espace optimal. La nouvelle cuisine en longueur est apposée sur le mur porteur, à l’opposé des fenêtres, nous permettant ainsi d’exploiter les arrivées d’eaux déjà existantes.
Nous utilisons la cavité du mur porteur afin d’y loger les toilettes et, ainsi réduire la largeur de la salle de bain, éclairée grâce à une verrière, afin d’agrandir la chambre à coucher qui donne maintenant sur la cour intérieure.
Le mobilier est composé d’éléments graphiques jouant le noir et blanc avec quelques touches de couleur habilement choisies pour dynamiser l’ensemble






