Un Cabinet d’Avocat
Avec une belle hauteur sous plafond, un plan traditionnel et de beaux volumes, cet appartement familial laissé en désuétude n’attendait qu’un nouvel acheteur pour faire peau neuve. En attendant, j’ai imaginé un plan plus actuel pour tirer le meilleur profit de ce logement idéalement placé au coeur du village de Passy, à coté du Trocadéro, dans le 16ème arrondissement.


Séjour
2019

Salle à Manger
2018






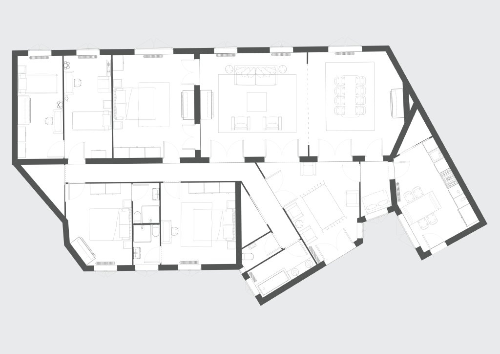
Nouveaux Plans
Les besoins du cabinet d’avocat étaient de pouvoir accueillir 20postes de travails repartits comme suivant :
- 2 postes dans des bureaux individuels (associés)
- 6 postes dans des bureaux partagés en binome (collabs)
- 6 postes assitants
- 5 postes stagaires
- 1 poste d’accueil
- 10p dans la salle de réunion
3) Transoarmation des chambres en bureaux, les pieces a vivre deviennet les salles de rénoin
2) Les espaces communs repensés, l’ancienne salle de bain devient la nouvelle cuisine, l’ancienne cuisine la salle des assitants.



